Doビル新町
| 物件名 | Doビル新町 | ||
|---|---|---|---|
| 住所 | 大阪府大阪市西区新町2-3-8 | ||
| 最寄駅 | |||
| 竣工年 | 1989年3月 | ||
| 規模 | 地上10階 | ||
| 空調 | 個別空調 | OAフロア | タイルカーペット / その他 |
| EV | 1 基 | トイレ | 男女別・室外 |
| 駐車場 | 無し | 24時間使用 | 使用不可 |
| 耐震 | 新耐震基準 | 機械警備 | 有り |
募集概要
| 階数 |
3階
302
|
|---|---|
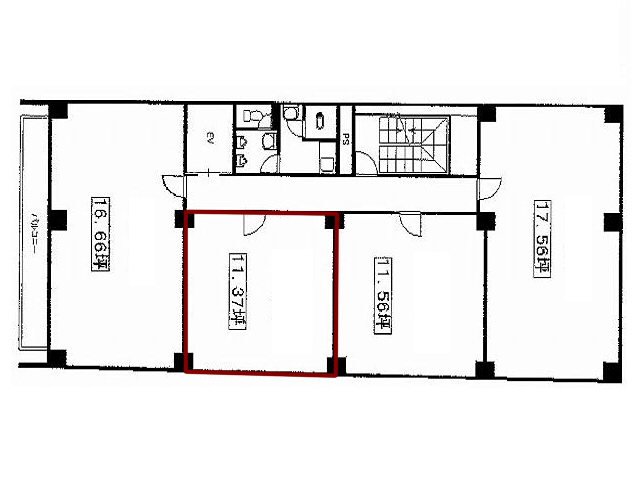
| 坪数 | 11.37坪 |
| 用途 | 事務所 |
| 月額(賃料+共益費) (税別) | 113,700円 |
| 坪単価(賃料+共益費) (税別) | 10,000円/坪 |
| 賃料(税別) |
90,960円 (8,000円/坪) |
| 共益費(税別) |
22,740円 (2,000円/坪) |
| 敷金 | 2ヶ月 |
| 礼金 | 2ヶ月 |
| 償却 | 無し |
| 入居可能日 | 相談 |
| 空室確認日 | 2025/10/02 |
その他空室情報
| 階数 | 坪数 |
賃料 (税別) |
共益費 (税別) |
敷金・保証金 | 入居日 | 詳細 |
お気に入り 追加 |
|---|---|---|---|---|---|---|---|
|
6階
601
|
18.39坪 |
161,832円 (8,800円/坪) |
40,458円 (2,200円/坪) |
2ヶ月 | 相談 |
|
|
|
8階
801
|
15.59坪 |
124,720円 (8,000円/坪) |
31,180円 (2,000円/坪) |
2ヶ月 | 相談 |
|
|
|
10階
1002
|
11.56坪 |
83,232円 (7,200円/坪) |
20,808円 (1,800円/坪) |
2ヶ月 | 相談 |
|
|









