佐藤第2ビル
| 物件名 | 佐藤第2ビル | ||
|---|---|---|---|
| 住所 | 東京都台東区台東1-27-11 | ||
| 最寄駅 | |||
| 竣工年 | 1976年3月 | ||
| 規模 | 地上7階 地下1階 | ||
| 空調 | 個別空調 | OAフロア | その他 |
| EV | 1 基 | トイレ | 男女共用・室内 |
| 駐車場 | 無し | 24時間使用 | 使用可 |
| 耐震 | 旧耐震基準 | 機械警備 | 無し |
募集概要
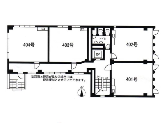
| 階数 |
4階
401
|
|---|---|
| 坪数 | 11.57坪 |
| 用途 | 事務所 |
| 月額(賃料+共益費) (税別) | 138,840円 |
| 坪単価(賃料+共益費) (税別) | 12,000円/坪 |
| 賃料(税別) |
115,700円 (10,000円/坪) |
| 共益費(税別) |
23,140円 (2,000円/坪) |
| 敷金 | 6ヶ月 |
| 礼金 | 無し |
| 償却 | 2ヶ月(解約時) |
| 入居可能日 | 2026年2月 |
| 空室確認日 | 2026/01/16 |









