ベルブ永山
| 物件名 | ベルブ永山 | ||
|---|---|---|---|
| 住所 | 東京都多摩市永山1-5 | ||
| 最寄駅 | |||
| 竣工年 | 1997年4月 | ||
| 規模 | 地上6階 地下1階 | ||
| 空調 | 個別空調 | OAフロア | その他 |
| EV | 1 基 | トイレ | 男女共用・室内 |
| 駐車場 | 無し | 24時間使用 | 使用可 |
| 耐震 | 新耐震基準 | 機械警備 | 無し |
募集概要
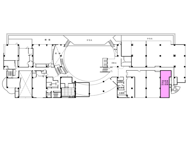
| 階数 |
4階
405
|
|---|---|
| 坪数 | 26.05坪 |
| 用途 | 事務所 |
| 月額(賃料+共益費) (税別) | 相談 |
| 坪単価(賃料+共益費) (税別) | 相談 |
| 賃料(税別) | 相談 |
| 共益費(税別) | 相談 |
| 敷金 | 相談 |
| 礼金 | 無し |
| 償却 | 無し |
| 入居可能日 | 即日 |
| 空室確認日 | 2026/02/24 |
その他空室情報
| 階数 | 坪数 |
賃料 (税別) |
共益費 (税別) |
敷金・保証金 | 入居日 | 詳細 |
お気に入り 追加 |
|---|---|---|---|---|---|---|---|
|
5階
503-2
|
16.46坪 | 相談 | 相談 | 相談 | 即日 |
|
|









