大手町宝栄ビル
| 物件名 | 大手町宝栄ビル | ||
|---|---|---|---|
| 住所 | 東京都千代田区神田錦町1-13 | ||
| 最寄駅 | |||
| 竣工年 | 1984年3月 | ||
| 規模 | 地上8階 | ||
| 空調 | 個別空調 | OAフロア | その他 |
| EV | 1 基 | トイレ | 男女別・室外 |
| 駐車場 | 無し | 24時間使用 | 使用可 |
| 耐震 | 新耐震基準 | 機械警備 | 無し |
募集概要
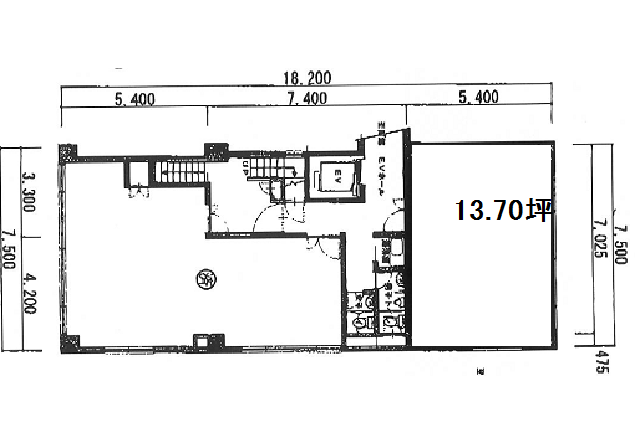
| 階数 |
2階
202
|
|---|---|
| 坪数 | 13.7坪 |
| 用途 | 事務所 |
| 月額(賃料+共益費) (税別) | 191,800円 |
| 坪単価(賃料+共益費) (税別) | 14,000円/坪 |
| 賃料(税別) |
164,400円 (12,000円/坪) |
| 共益費(税別) |
27,400円 (2,000円/坪) |
| 敷金 | 5ヶ月 |
| 礼金 | 無し |
| 償却 | 2ヶ月 |
| 入居可能日 | 2025年12月 |
| 空室確認日 | 2025/09/26 |
その他空室情報
| 階数 | 坪数 |
賃料 (税別) |
共益費 (税別) |
敷金・保証金 | 入居日 | 詳細 |
お気に入り 追加 |
|---|---|---|---|---|---|---|---|
|
8階
802
|
22.6坪 |
271,200円 (12,000円/坪) |
45,200円 (2,000円/坪) |
5ヶ月 | 即日 |
|
|









