田中産商第一生命共同ビル

物件名 田中産商第一生命共同ビル
住所 静岡県静岡市葵区日出町2-1
最寄駅
竣工年 1988年5月
規模 地上8階 地下1階
空調 セントラル空調 OAフロア OAフロア / タイルカーペット
EV 2 基 トイレ 男女別・室外
駐車場 有り 24時間使用 使用可
耐震 新耐震基準 機械警備 有り

募集概要

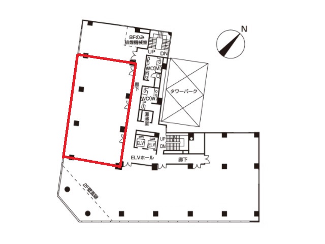
階数 5階
坪数 55.32坪
用途 事務所
月額(賃料+共益費) (税別) 相談
坪単価(賃料+共益費) (税別) 相談
賃料(税別) 相談
共益費(税別) 相談
敷金 相談
礼金 無し
償却 無し
入居可能日 2026年4月
空室確認日 2025/10/10

物件詳細PDF

  • お客様用
  • 業者様用

お問い合わせはこちら

その他空室情報

階数 坪数 賃料
(税別)
共益費
(税別)
敷金・保証金 入居日 詳細 お気に入り
追加
6階 18.42坪 相談 相談 相談 即日 お問合せ お気に入り追加

更に詳細な資料情報をご希望の方はこちら

がついているものは必須項目です
物件名 田中産商第一生命共同ビル 5階 55.32坪
物件住所 静岡県静岡市葵区日出町2-1
■お問合せ内容
お問合せ内容
備考欄
■ご希望条件について教えてください
立地
ご希望の面積 ※1㎡=0.3025坪
ご希望の面積がお決まりの方は単位を選んでからご記入ください
ご予算感 ※共益費込みの月額賃料(税別)
ご予算感がお決まりの方は単位を選んでからご記入ください
ご入居希望時期
その他のご質問・ご要望など
■物件探しの目的についてお教えください
用途
業態(店舗選択のみ)
その他用途
目的
その他目的
■物件探しの目的についてお教えください
貴社名 ご担当者名  
電話番号
メールアドレス メールアドレス
(再入力)
郵便番号
都道府県/市区町村/番地
建物名/階数
確認画面へ進む

同エリアの物件

  • 中村ビル 静岡県浜松市中区北島町125-23 浜松

  • しずおか焼津信用金庫石田支店ビル 静岡県静岡市駿河区石田1-1-46 静岡

  • 三青ビル 静岡県沼津市三枚橋町5-21 沼津

  • EKビル 静岡県浜松市中央区中央3-15-1 浜松

Copyright(C) Quick Consulting Co.,LTD. All right reserved.