振興ビル
| 物件名 | 振興ビル | ||
|---|---|---|---|
| 住所 | 兵庫県神戸市中央区小野柄通4-1-15 | ||
| 最寄駅 | |||
| 竣工年 | 1986年3月 | ||
| 規模 | 地上9階 | ||
| 空調 | 個別空調 | OAフロア | その他 |
| EV | 1 基 | トイレ | 調査中 |
| 駐車場 | 無し | 24時間使用 | 使用可 |
| 耐震 | 新耐震基準 | 機械警備 | 有り |
募集概要
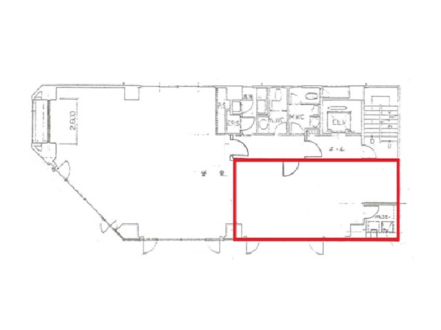
| 階数 | 7階 |
|---|---|
| 坪数 | 10.3坪 |
| 用途 | 事務所 |
| 月額(賃料+共益費) (税別) | 113,300円 |
| 坪単価(賃料+共益費) (税別) | 11,000円/坪 |
| 賃料(税別) |
92,700円 (9,000円/坪) |
| 共益費(税別) |
20,600円 (2,000円/坪) |
| 敷金 | 10ヶ月 |
| 礼金 | 無し |
| 償却 | 35% |
| 入居可能日 | 2026年1月 |
| 空室確認日 | 2025/12/03 |
その他空室情報
| 階数 | 坪数 |
賃料 (税別) |
共益費 (税別) |
敷金・保証金 | 入居日 | 詳細 |
お気に入り 追加 |
|---|---|---|---|---|---|---|---|
|
5階
ワンフロア
|
40.1坪 |
360,900円 (9,000円/坪) |
80,200円 (2,000円/坪) |
10ヶ月 | 即日 |
|
|
|
6階
ワンフロア
|
40.1坪 |
360,900円 (9,000円/坪) |
80,200円 (2,000円/坪) |
10ヶ月 | 2026年1月 |
|
|









