OYAビル

物件名 OYAビル
住所 東京都新宿区西新宿3-9-6
最寄駅
竣工年 1990年11月
規模 地上9階
空調 個別空調 OAフロア OAフロア
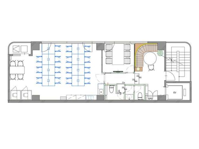
EV 1 基 トイレ 男女別・室内
駐車場 無し 24時間使用 使用可
耐震 新耐震基準 機械警備 有り

募集概要

階数 7階
セットアップ
坪数 25.01坪
用途 事務所
月額(賃料+共益費) (税別) 750,300円
坪単価(賃料+共益費) (税別) 30,000円/坪
賃料(税別) 750,300円
(30,000円/坪)
共益費(税別) 賃料に含む
敷金 無し
礼金 無し
償却 無し
入居可能日 2025年12月
空室確認日 2025/09/19

物件詳細PDF

  • お客様用
  • 業者様用

お問い合わせはこちら

その他空室情報

階数 坪数 賃料
(税別)
共益費
(税別)
敷金・保証金 入居日 詳細 お気に入り
追加
8階
セットアップ
25.01坪 750,300円
(30,000円/坪)
賃料に含む 無し 2025年12月 お問合せ お気に入り追加
9階
(申)セットアップ
25.01坪 750,300円
(30,000円/坪)
賃料に含む 無し 2025年12月 お問合せ お気に入り追加

更に詳細な資料情報をご希望の方はこちら

がついているものは必須項目です
物件名 OYAビル 7階 セットアップ 25.01坪
物件住所 東京都新宿区西新宿3-9-6
■お問合せ内容
お問合せ内容
備考欄
■ご希望条件について教えてください
立地
ご希望の面積 ※1㎡=0.3025坪
ご希望の面積がお決まりの方は単位を選んでからご記入ください
ご予算感 ※共益費込みの月額賃料(税別)
ご予算感がお決まりの方は単位を選んでからご記入ください
ご入居希望時期
その他のご質問・ご要望など
■物件探しの目的についてお教えください
用途
業態(店舗選択のみ)
その他用途
目的
その他目的
■物件探しの目的についてお教えください
貴社名 ご担当者名  
電話番号
メールアドレス メールアドレス
(再入力)
郵便番号
都道府県/市区町村/番地
建物名/階数
確認画面へ進む

同エリアの物件

  • エアシー西新宿(Air.C西新宿) 東京都新宿区西新宿7-6-7 大久保

  • ニューセントラルビル 東京都新宿区西新宿1-5-12 新宿西口

  • プルミエ西新宿ビル 東京都新宿区西新宿7-9-10 新宿西口

  • (仮称)明治安田新宿ビル 東京都新宿区西新宿1-9-1~12(地番) 新宿

Copyright(C) Quick Consulting Co.,LTD. All right reserved.