新宿三井ビルディング 36階 59.16坪
現在、こちらのお部屋は募集しておりません。
空室情報は常に更新されています。最新の空室状況はお電話にてお問い合わせください。
こちらのビルには他に空室がございます
このビルの空室を見る新宿三井ビルディング
| 物件名 | 新宿三井ビルディング | ||
|---|---|---|---|
| 住所 | 東京都新宿区西新宿2-1-1 | ||
| 最寄駅 | |||
| 竣工年 | 1974年9月 | ||
| 規模 | 地上55階 地下3階 | ||
| 空調 | セントラル空調 | OAフロア | OAフロア |
| EV | 33 基 | トイレ | 男女別・室外 |
| 駐車場 | 有り | 24時間使用 | 使用可 |
| 耐震 | 新耐震基準 | 機械警備 | 有り |
募集概要
| 階数 |
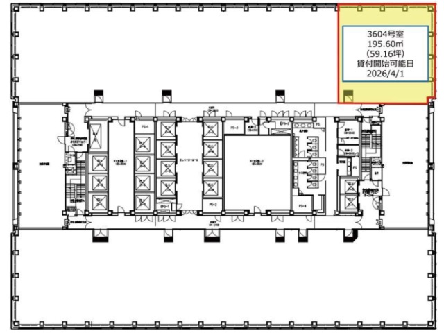
36階
3604
|
|---|---|
| 坪数 | 59.16坪 |
| 用途 | 事務所 |
この物件の最新の空室状況はお問合せ下さい
その他空室情報
| 階数 | 坪数 |
賃料 (税別) |
共益費 (税別) |
敷金・保証金 | 入居日 | 詳細 |
お気に入り 追加 |
|---|---|---|---|---|---|---|---|
|
B1階
B107
|
37.31坪 | 相談 | 賃料に含む | 相談 | 即日 |
|
|
|
1階
109A1
|
35.58坪 | 相談 | 賃料に含む | 相談 | 即日 |
|
|
|
4階
402A
|
41.72坪 | 相談 | 賃料に含む | 相談 | 即日 |
|
|
|
9階
901 居抜き可
|
127.02坪 | 相談 | 賃料に含む | 相談 | 2026年6月 |
|
|
|
35階
3501
|
254.05坪 | 相談 | 賃料に含む | 相談 | 2026年1月 |
|
|
|
39階
3912
|
31.15坪 | 相談 | 賃料に含む | 相談 | 即日 |
|
|
|
51階
5105
|
254.05坪 | 相談 | 賃料に含む | 相談 | 2027年6月 |
|
|
|
51階
5112
|
31.15坪 | 相談 | 賃料に含む | 相談 | 2027年6月 |
|
|
|
51階
5109
|
31.15坪 | 相談 | 賃料に含む | 相談 | 2027年6月 |
|
|
|
51階
5101
|
254.05坪 | 相談 | 賃料に含む | 相談 | 2027年6月 |
|
|









