新宿野村ビル
| 物件名 | 新宿野村ビル | ||
|---|---|---|---|
| 住所 | 東京都新宿区西新宿1-26-2 | ||
| 最寄駅 | |||
| 竣工年 | 1978年6月 | ||
| 規模 | 地上50階 地下5階 | ||
| 空調 | セントラル空調 | OAフロア | OAフロア |
| EV | 29 基 | トイレ | 男女別・室外 |
| 駐車場 | 有り | 24時間使用 | 使用可 |
| 耐震 | 耐震補強済 | 機械警備 | 有り |
募集概要
| 階数 |
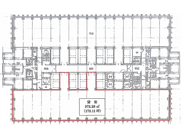
11階
西 申込有
|
|---|---|
| 坪数 | 173.11坪 |
| 用途 | 事務所 |
| 月額(賃料+共益費) (税別) | 相談 |
| 坪単価(賃料+共益費) (税別) | 相談 |
| 賃料(税別) | 相談 |
| 共益費(税別) | 賃料に含む |
| 敷金 | 相談 |
| 礼金 | 無し |
| 償却 | 無し |
| 入居可能日 | 相談 |
| 空室確認日 | 2025/11/12 |
その他空室情報
| 階数 | 坪数 |
賃料 (税別) |
共益費 (税別) |
敷金・保証金 | 入居日 | 詳細 |
お気に入り 追加 |
|---|---|---|---|---|---|---|---|
|
5階
西9-14
|
58.32坪 | 相談 | 賃料に含む | 相談 | 即日 |
|
|
|
15階
西5-15
|
105.48坪 | 相談 | 賃料に含む | 相談 | 2026年1月 |
|
|
|
15階
東5-12
|
72.57坪 | 相談 | 賃料に含む | 相談 | 2026年1月 |
|
|
|
26階
2608セットアップ
|
57.54坪 | 相談 | 賃料に含む | 相談 | 2026年4月 |
|
|
|
26階
2607
|
45.3坪 | 相談 | 賃料に含む | 相談 | 2026年4月 |
|
|
|
26階
2604
|
57.54坪 | 相談 | 賃料に含む | 相談 | 2026年4月 |
|
|
|
26階
2601
|
48.48坪 | 相談 | 賃料に含む | 相談 | 2026年4月 |
|
|
|
26階
2603セットアップ
|
45.3坪 | 相談 | 賃料に含む | 相談 | 2026年4月 |
|
|
|
26階
2606セットアップ
|
36.24坪 | 相談 | 賃料に含む | 相談 | 2026年4月 |
|
|
|
26階
2602セットアップ
|
27.18坪 | 相談 | 賃料に含む | 相談 | 2026年4月 |
|
|
|
34階
(居抜き)
|
381.86坪 | 相談 | 賃料に含む | 相談 | 2027年5月 |
|
|
| 37階 | 381.86坪 | 相談 | 賃料に含む | 相談 | 2026年3月 |
|
|
| 38階 | 391.99坪 | 相談 | 賃料に含む | 相談 | 2026年3月 |
|
|
|
39階
西15-22
|
82.7坪 | 相談 | 賃料に含む | 相談 | 即日 |
|
|
|
39階
西5-15 先行有
|
110.66坪 | 相談 | 賃料に含む | 相談 | 即日 |
|
|
| 41階 | 386.73坪 | 相談 | 賃料に含む | 相談 | 2027年3月 |
|
|
| 42階 | 391.99坪 | 相談 | 賃料に含む | 相談 | 2027年2月 |
|
|
| 43階 | 391.99坪 | 相談 | 賃料に含む | 相談 | 2027年1月 |
|
|
| 45階 | 391.99坪 | 相談 | 賃料に含む | 相談 | 2026年11月 |
|
|
|
46階
申込有
|
402.11坪 | 相談 | 賃料に含む | 相談 | 2026年9月 |
|
|
|
48階
4805
|
13.68坪 | 相談 | 賃料に含む | 相談 | 2026年7月 |
|
|









