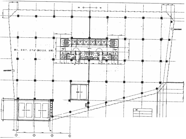
明宝ビル 4階 328.9坪
現在、こちらのお部屋は募集しておりません。
空室情報は常に更新されています。最新の空室状況はお電話にてお問い合わせください。
こちらのビルには他に空室がございます
このビルの空室を見る明宝ビル
| 物件名 | 明宝ビル | ||
|---|---|---|---|
| 住所 | 東京都新宿区西新宿1-21-1 | ||
| 最寄駅 | |||
| 竣工年 | 1970年10月 | ||
| 規模 | 地上14階 | ||
| 空調 | セントラル空調 | OAフロア | OAフロア |
| EV | 6 基 | トイレ | 男女別・室外 |
| 駐車場 | 有り | 24時間使用 | 使用可 |
| 耐震 | 耐震補強済 | 機械警備 | 有り |
募集概要
| 階数 |
4階
410-416
|
|---|---|
| 坪数 | 328.9坪 |
| 用途 | 事務所 |
その他空室情報
| 階数 | 坪数 |
賃料 (税別) |
共益費 (税別) |
敷金・保証金 | 入居日 | 詳細 |
お気に入り 追加 |
|---|---|---|---|---|---|---|---|
|
7階
東 申込有
|
233坪 | 相談 | 相談 | 12ヶ月 | 即日 |
|
|
|
11階
西
|
233坪 |
4,897,660円 (21,020円/坪) |
1,160,340円 (4,980円/坪) |
相談 | 2026年4月 |
|
|









