ちばぎん松戸ビル
| 物件名 | ちばぎん松戸ビル | ||
|---|---|---|---|
| 住所 | 千葉県松戸市本町7-10 | ||
| 最寄駅 | |||
| 竣工年 | 1974年3月 | ||
| 規模 | 地上9階 地下2階 | ||
| 空調 | 個別空調 / セントラル空調 | OAフロア | OAフロア |
| EV | 3 基 | トイレ | 男女別・室外 |
| 駐車場 | 有り | 24時間使用 | 使用可 |
| 耐震 | 新耐震基準相当 | 機械警備 | 有り |
募集概要
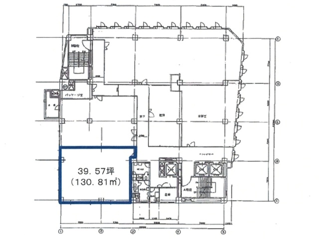
| 階数 | 8階 |
|---|---|
| 坪数 | 39.57坪 |
| 用途 | 事務所 |
| 月額(賃料+共益費) (税別) | 573,765円 |
| 坪単価(賃料+共益費) (税別) | 14,500円/坪 |
| 賃料(税別) |
415,485円 (10,500円/坪) |
| 共益費(税別) |
158,280円 (4,000円/坪) |
| 敷金 | 10ヶ月 |
| 礼金 | 無し |
| 償却 | 無し |
| 入居可能日 | 2026年6月 |
| 空室確認日 | 2026/02/04 |
その他空室情報
| 階数 | 坪数 |
賃料 (税別) |
共益費 (税別) |
敷金・保証金 | 入居日 | 詳細 |
お気に入り 追加 |
|---|---|---|---|---|---|---|---|
| 6階 | 120坪 |
1,200,000円 (10,000円/坪) |
480,000円 (4,000円/坪) |
10ヶ月 | 2026年7月 |
|
|









