クロスオフィス渋谷Medio
| 物件名 | クロスオフィス渋谷Medio | ||
|---|---|---|---|
| 住所 | 東京都渋谷区渋谷2-11-5 | ||
| 最寄駅 | |||
| 竣工年 | 2013年6月 | ||
| 規模 | 地上9階 | ||
| 空調 | 個別空調 | OAフロア | OAフロア |
| EV | 2 基 | トイレ | 男女別・室外 |
| 駐車場 | 有り | 24時間使用 | 使用可 |
| 耐震 | 新耐震基準 | 機械警備 | 有り |
募集概要
| 階数 |
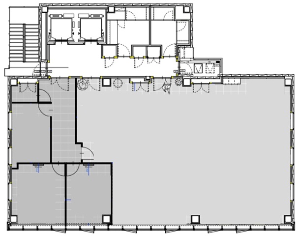
7階
7-ABC
|
|---|---|
| 坪数 | 59.67坪 |
| 用途 | レンタルオフィス |
| 月額(賃料+共益費) (税別) | 相談 |
| 坪単価(賃料+共益費) (税別) | 相談 |
| 賃料(税別) | 相談 |
| 共益費(税別) | 賃料に含む |
| 敷金 | 相談 |
| 礼金 | 無し |
| 償却 | 無し |
| 入居可能日 | 2025年12月 |
| 空室確認日 | ※ |
※レンタルオフィスの募集状況は流動的なため下記は仮表示です。最新の募集状況はお問合せ下さい。
※また、レンタルオフィスの面積は仮の数値です。実際の面積とは異なりますのでご注意ください
※また、レンタルオフィスの面積は仮の数値です。実際の面積とは異なりますのでご注意ください
その他空室情報
| 階数 | 坪数 |
賃料 (税別) |
共益費 (税別) |
敷金・保証金 | 入居日 | 詳細 |
お気に入り 追加 |
|---|---|---|---|---|---|---|---|
|
2階
2-B
|
14.86坪 | 相談 | 相談 | 相談 | 即日 |
|
|
|
3階
A申込有
|
14.84坪 | 相談 | 賃料に含む | 相談 | 即日 |
|
|
|
4階
4-C
|
29.96坪 | 相談 | 賃料に含む | 相談 |
|
|









