霞城セントラル
| 物件名 | 霞城セントラル | ||
|---|---|---|---|
| 住所 | 山形県山形市城南町1-1-1 | ||
| 最寄駅 | |||
| 竣工年 | 2000年11月 | ||
| 規模 | 地上24階 地下2階 | ||
| 空調 | 個別空調 | OAフロア | その他 |
| EV | 14 基 | トイレ | 男女別・室外 |
| 駐車場 | 有り | 24時間使用 | 使用可 |
| 耐震 | 新耐震基準 | 機械警備 | 有り |
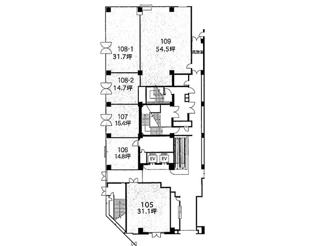
募集概要
| 階数 | 1階 |
|---|---|
| 坪数 | 14.8坪 |
| 用途 | 事務所 |
| 月額(賃料+共益費) (税別) | 222,000円 |
| 坪単価(賃料+共益費) (税別) | 15,000円/坪 |
| 賃料(税別) |
162,800円 (11,000円/坪) |
| 共益費(税別) |
59,200円 (4,000円/坪) |
| 敷金 | |
| 礼金 | |
| 償却 | 無し |
| 入居可能日 | 2026年4月 |
| 空室確認日 | 2025/11/18 |
その他空室情報
| 階数 | 坪数 |
賃料 (税別) |
共益費 (税別) |
敷金・保証金 | 入居日 | 詳細 |
お気に入り 追加 |
|---|---|---|---|---|---|---|---|
| 1階 | 14.7坪 |
161,700円 (11,000円/坪) |
58,800円 (4,000円/坪) |
12ヶ月 | 即日 |
|
|
|
18階
A 先行有
|
27.4坪 |
301,400円 (11,000円/坪) |
109,600円 (4,000円/坪) |
12ヶ月 | 即日 |
|
|
|
18階
先行有
|
21.3坪 |
234,300円 (11,000円/坪) |
85,200円 (4,000円/坪) |
12ヶ月 | 即日 |
|
|
|
18階
先行有
|
32坪 |
352,000円 (11,000円/坪) |
128,000円 (4,000円/坪) |
12ヶ月 | 即日 |
|
|









