ISE伊勢住宅宿院町西7801

物件名 ISE伊勢住宅宿院町西7801
住所 大阪府堺市堺区宿院町西1-1-3
最寄駅
竣工年 1995年1月
規模 地上8階
空調 個別空調 OAフロア その他
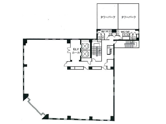
EV 2 基 トイレ 男女共用・室外
駐車場 有り 24時間使用 使用可
耐震 新耐震基準 機械警備 有り

募集概要

階数 2階
坪数 27.99坪
用途 事務所
月額(賃料+共益費) (税別) 相談
坪単価(賃料+共益費) (税別) 相談
賃料(税別) 相談
共益費(税別) 相談
敷金 相談
礼金 3ヶ月
償却 無し
入居可能日 即日
空室確認日 2025/10/16

物件詳細PDF

  • お客様用
  • 業者様用

お問い合わせはこちら

その他空室情報

階数 坪数 賃料
(税別)
共益費
(税別)
敷金・保証金 入居日 詳細 お気に入り
追加
4階 53.95坪 相談 相談 相談 相談 お問合せ お気に入り追加

更に詳細な資料情報をご希望の方はこちら

がついているものは必須項目です
物件名 ISE伊勢住宅宿院町西7801 2階 27.99坪
物件住所 大阪府堺市堺区宿院町西1-1-3
■お問合せ内容
お問合せ内容
備考欄
■ご希望条件について教えてください
立地
ご希望の面積 ※1㎡=0.3025坪
ご希望の面積がお決まりの方は単位を選んでからご記入ください
ご予算感 ※共益費込みの月額賃料(税別)
ご予算感がお決まりの方は単位を選んでからご記入ください
ご入居希望時期
その他のご質問・ご要望など
■物件探しの目的についてお教えください
用途
業態(店舗選択のみ)
その他用途
目的
その他目的
■物件探しの目的についてお教えください
貴社名 ご担当者名  
電話番号
メールアドレス メールアドレス
(再入力)
郵便番号
都道府県/市区町村/番地
建物名/階数
確認画面へ進む

同エリアの物件

  • ISE伊勢住宅竜神橋町7505 大阪府堺市堺区竜神橋町1-2-16

  • 星光くずはビル 大阪府枚方市樟葉花園町12‐1 樟葉

  • 三共堺東ビル 大阪府堺市堺区南花田口町2-3-20 堺東

  • 損保ジャパン守口ビル 大阪府守口市京阪本通1-2-3 太子橋今市

Copyright(C) Quick Consulting Co.,LTD. All right reserved.