ステーションプラザ高知
| 物件名 | ステーションプラザ高知 | ||
|---|---|---|---|
| 住所 | 高知県高知市駅前町2-16 | ||
| 最寄駅 | |||
| 竣工年 | 1989年10月 | ||
| 規模 | 地上7階 | ||
| 空調 | 個別空調 | OAフロア | タイルカーペット |
| EV | 1 基 | トイレ | 男女別・室外 |
| 駐車場 | 有り | 24時間使用 | 使用可 |
| 耐震 | 新耐震基準 | 機械警備 | 有り |
募集概要
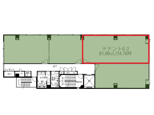
| 階数 |
6階
2
|
|---|---|
| 坪数 | 24.76坪 |
| 用途 | 事務所 |
| 月額(賃料+共益費) (税別) | 198,080円 |
| 坪単価(賃料+共益費) (税別) | 8,000円/坪 |
| 賃料(税別) |
198,080円 (8,000円/坪) |
| 共益費(税別) | 賃料に含む |
| 敷金 | 3ヶ月 |
| 礼金 | 無し |
| 償却 | 無し |
| 入居可能日 | 相談 |
| 空室確認日 | 2026/02/02 |
その他空室情報
| 階数 | 坪数 |
賃料 (税別) |
共益費 (税別) |
敷金・保証金 | 入居日 | 詳細 |
お気に入り 追加 |
|---|---|---|---|---|---|---|---|
|
2階
別棟
|
26.66坪 |
213,280円 (8,000円/坪) |
賃料に含む | 3ヶ月 | 相談 |
|
|
|
5階
3
|
12.52坪 |
106,420円 (8,500円/坪) |
賃料に含む | 3ヶ月 | 相談 |
|
|
|
5階
1
|
29.55坪 |
236,400円 (8,000円/坪) |
賃料に含む | 3ヶ月 | 相談 |
|
|
|
5階
別棟
|
26.66坪 |
213,280円 (8,000円/坪) |
賃料に含む | 3ヶ月 | 相談 |
|
|
| 6階 | 71.64坪 |
537,300円 (7,500円/坪) |
賃料に含む | 6ヶ月 | 相談 |
|
|
|
6階
4
|
17.06坪 |
145,010円 (8,500円/坪) |
賃料に含む | 3ヶ月 | 相談 |
|
|
|
6階
3
|
12.52坪 |
106,420円 (8,500円/坪) |
賃料に含む | 3ヶ月 | 相談 |
|
|
|
6階
1
|
17.3坪 |
147,050円 (8,500円/坪) |
賃料に含む | 3ヶ月 | 相談 |
|
|









