汐留AZビル
| 物件名 | 汐留AZビル | ||
|---|---|---|---|
| 住所 | 東京都港区東新橋2-6-6 | ||
| 最寄駅 | |||
| 竣工年 | 1985年4月 | ||
| 規模 | 地上8階 地下1階 | ||
| 空調 | 個別空調 | OAフロア | その他 |
| EV | 1 基 | トイレ | 男女共用・室内 |
| 駐車場 | 無し | 24時間使用 | 使用可 |
| 耐震 | 新耐震基準 | 機械警備 | 有り |
募集概要
| 階数 |
8階
801
|
|---|---|
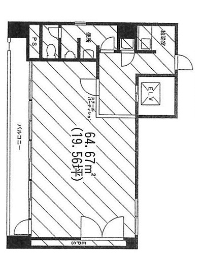
| 坪数 | 19.56坪 |
| 用途 | 事務所 |
| 月額(賃料+共益費) (税別) | 361,860円 |
| 坪単価(賃料+共益費) (税別) | 18,500円/坪 |
| 賃料(税別) |
303,180円 (15,500円/坪) |
| 共益費(税別) |
58,680円 (3,000円/坪) |
| 敷金 | 10ヶ月 |
| 礼金 | 無し |
| 償却 | 無し |
| 入居可能日 | 2026年6月 |
| 空室確認日 | 2026/03/03 |
その他空室情報
| 階数 | 坪数 |
賃料 (税別) |
共益費 (税別) |
敷金・保証金 | 入居日 | 詳細 |
お気に入り 追加 |
|---|---|---|---|---|---|---|---|
| 4階 | 35.09坪 |
561,440円 (16,000円/坪) |
105,270円 (3,000円/坪) |
10ヶ月 | 2026年7月 |
|
|
| 7階 | 26.54坪 |
411,370円 (15,500円/坪) |
79,620円 (3,000円/坪) |
10ヶ月 | 2026年5月 |
|
|









