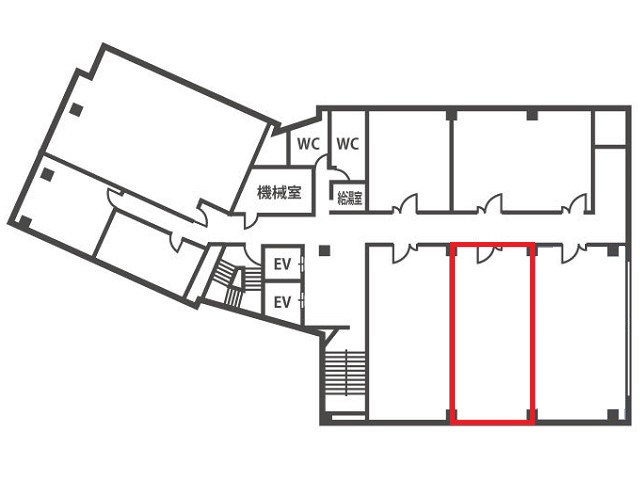
和光広瀬ビル 7階 18.65坪
現在、こちらのお部屋は募集しておりません。
空室情報は常に更新されています。最新の空室状況はお電話にてお問い合わせください。
こちらのビルには他に空室がございます
このビルの空室を見る和光広瀬ビル
| 物件名 | 和光広瀬ビル | ||
|---|---|---|---|
| 住所 | 広島県広島市中区広瀬北町3-11 | ||
| 最寄駅 | |||
| 竣工年 | 1976年3月 | ||
| 規模 | 地上9階 地下1階 | ||
| 空調 | 個別空調 | OAフロア | タイルカーペット |
| EV | 2 基 | トイレ | 男女別・室外 |
| 駐車場 | 有り | 24時間使用 | 使用可 |
| 耐震 | 旧耐震基準 | 機械警備 | 有り |
募集概要
| 階数 |
7階
B
|
|---|---|
| 坪数 | 18.65坪 |
| 用途 | 事務所 |
この物件の最新の空室状況はお問合せ下さい
その他空室情報
| 階数 | 坪数 |
賃料 (税別) |
共益費 (税別) |
敷金・保証金 | 入居日 | 詳細 |
お気に入り 追加 |
|---|---|---|---|---|---|---|---|
| 1階 | 38.6坪 |
308,800円 (8,000円/坪) |
賃料に含む | 6ヶ月 | 2026年2月 |
|
|
|
5階
E
|
9坪 |
45,000円 (5,000円/坪) |
18,000円 (2,000円/坪) |
6ヶ月 | 相談 |
|
|
|
8階
D
|
14.5坪 |
72,500円 (5,000円/坪) |
29,000円 (2,000円/坪) |
6ヶ月 | 相談 |
|
|









