金沢パークビル
| 物件名 | 金沢パークビル | ||
|---|---|---|---|
| 住所 | 石川県金沢市広岡3-1-1 | ||
| 最寄駅 | |||
| 竣工年 | 1991年10月 | ||
| 規模 | 地上12階 地下2階 | ||
| 空調 | セントラル空調 | OAフロア | OAフロア相談可 / その他 |
| EV | 12 基 | トイレ | 男女別・室外 |
| 駐車場 | 有り | 24時間使用 | 使用可 |
| 耐震 | 新耐震基準 | 機械警備 | 有り |
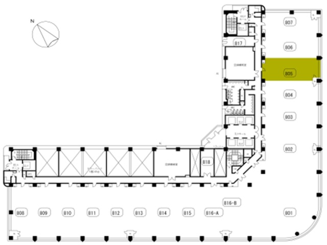
募集概要
| 階数 |
8階
805
|
|---|---|
| 坪数 | 30.12坪 |
| 用途 | 事務所 |
| 月額(賃料+共益費) (税別) | 相談 |
| 坪単価(賃料+共益費) (税別) | 相談 |
| 賃料(税別) | 相談 |
| 共益費(税別) | 相談 |
| 敷金 | 相談 |
| 礼金 | 無し |
| 償却 | |
| 入居可能日 | 即日 |
| 空室確認日 | 2026/04/09 |
その他空室情報
| 階数 | 坪数 |
賃料 (税別) |
共益費 (税別) |
敷金・保証金 | 入居日 | 詳細 |
お気に入り 追加 |
|---|---|---|---|---|---|---|---|
|
2階
217
|
7.49坪 | 相談 | 相談 | 相談 | 2026年10月 |
|
|
|
9階
906
|
46.88坪 | 相談 | 相談 | 相談 | 即日 |
|
|
|
11階
1110
|
30.77坪 | 相談 | 相談 | 相談 | 2026年5月 |
|
|
|
11階
1111
|
30.18坪 | 相談 | 相談 | 相談 | 2026年5月 |
|
|
|
11階
1110・1111
|
60.94坪 | 相談 | 相談 | 相談 | 2026年6月 |
|
|
|
11階
1101
|
157坪 | 相談 | 相談 | 相談 | 2026年8月 |
|
|









