久留米ビジネススクエア
| 物件名 | 久留米ビジネススクエア | ||
|---|---|---|---|
| 住所 | 福岡県久留米市東町42-21 | ||
| 最寄駅 | |||
| 竣工年 | 1983年 | ||
| 規模 | 地上7階 | ||
| 空調 | 個別空調 | OAフロア | OAフロア |
| EV | 2 基 | トイレ | 男女別・室外 |
| 駐車場 | 有り | 24時間使用 | 使用可 |
| 耐震 | 新耐震基準 | 機械警備 | 無し |
募集概要
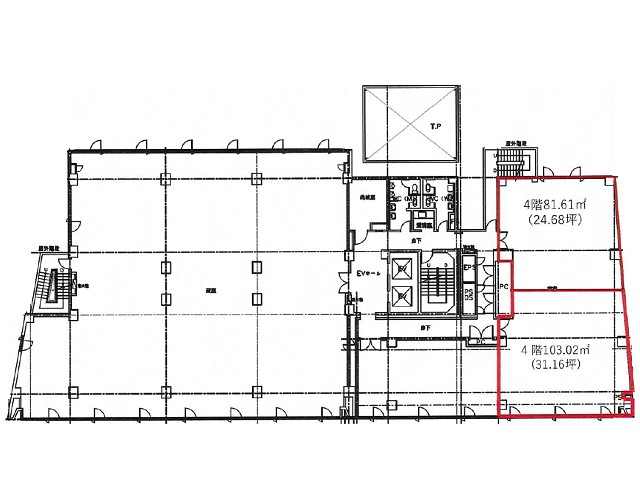
| 階数 | 4階 |
|---|---|
| 坪数 | 31.16坪 |
| 用途 | 事務所 |
| 月額(賃料+共益費) (税別) | 相談 |
| 坪単価(賃料+共益費) (税別) | 相談 |
| 賃料(税別) | 相談 |
| 共益費(税別) | 相談 |
| 敷金 | 相談 |
| 礼金 | 無し |
| 償却 | 無し |
| 入居可能日 | 即日 |
| 空室確認日 | 2025/12/12 |
その他空室情報
| 階数 | 坪数 |
賃料 (税別) |
共益費 (税別) |
敷金・保証金 | 入居日 | 詳細 |
お気に入り 追加 |
|---|---|---|---|---|---|---|---|
| 2階 | 21.23坪 | 相談 | 相談 | 相談 | 即日 |
|
|
| 3階 | 55.68坪 | 相談 | 相談 | 相談 | 2026年4月 |
|
|
| 4階 | 24.69坪 | 相談 | 相談 | 相談 | 相談 |
|
|
| 6階 | 21.29坪 | 相談 | 相談 | 相談 | 相談 |
|
|
|
7階
申込有
|
21.52坪 | 相談 | 相談 | 相談 | 即日 |
|
|









