宇徳ビルディング
| 物件名 | 宇徳ビルディング | ||
|---|---|---|---|
| 住所 | 神奈川県横浜市中区弁天通6-85 | ||
| 最寄駅 | |||
| 竣工年 | 1971年3月 | ||
| 規模 | 地上9階 地下3階 | ||
| 空調 | 個別空調 | OAフロア | OAフロア |
| EV | 3 基 | トイレ | 男女別・室外 |
| 駐車場 | 有り | 24時間使用 | 使用可 |
| 耐震 | 耐震補強済 | 機械警備 | 無し |
募集概要
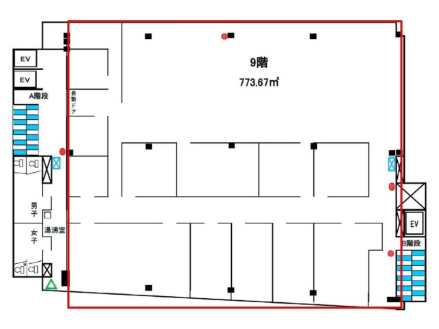
| 階数 |
9階
901
|
|---|---|
| 坪数 | 234.03坪 |
| 用途 | 事務所 |
| 月額(賃料+共益費) (税別) | 2,925,375円 |
| 坪単価(賃料+共益費) (税別) | 12,500円/坪 |
| 賃料(税別) |
2,925,375円 (12,500円/坪) |
| 共益費(税別) | 賃料に含む |
| 敷金 | 10ヶ月 |
| 礼金 | 1ヶ月 |
| 償却 | 無し |
| 入居可能日 | 即日 |
| 空室確認日 | 2025/11/06 |
その他空室情報
| 階数 | 坪数 |
賃料 (税別) |
共益費 (税別) |
敷金・保証金 | 入居日 | 詳細 |
お気に入り 追加 |
|---|---|---|---|---|---|---|---|
|
4階
401申込有
|
114.07坪 |
1,311,805円 (11,500円/坪) |
賃料に含む | 10ヶ月 | 即日 |
|
|
|
5階
502申込有
|
23.05坪 |
288,125円 (12,500円/坪) |
賃料に含む | 10ヶ月 | 2026年2月 |
|
|
|
7階
706申込有
|
47.69坪 |
548,435円 (11,500円/坪) |
賃料に含む | 10ヶ月 | 即日 |
|
|









