インテリックス新横浜ビル
| 物件名 | インテリックス新横浜ビル | ||
|---|---|---|---|
| 住所 | 神奈川県横浜市港北区新横浜1-17-12 | ||
| 最寄駅 | |||
| 竣工年 | 1991年8月 | ||
| 規模 | 地上8階 | ||
| 空調 | 個別空調 | OAフロア | OAフロア |
| EV | 2 基 | トイレ | 男女別・室外 |
| 駐車場 | 有り | 24時間使用 | 使用可 |
| 耐震 | 新耐震基準 | 機械警備 | 有り |
募集概要
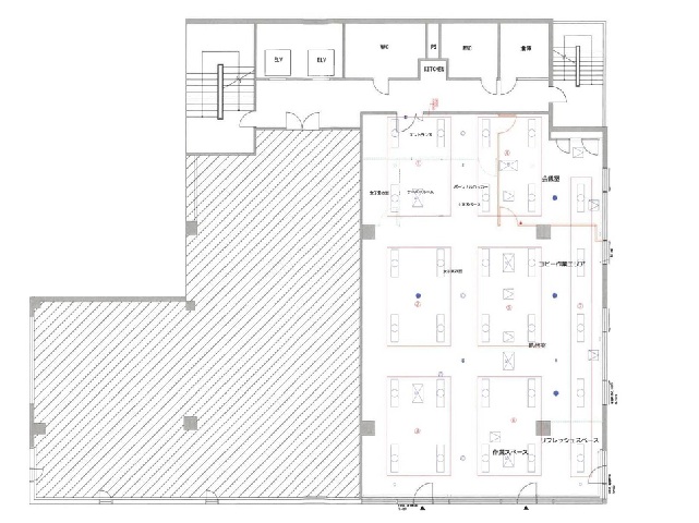
| 階数 |
3階
A(居抜き)
|
|---|---|
| 坪数 | 65.48坪 |
| 用途 | 事務所 |
| 月額(賃料+共益費) (税別) | 654,800円 |
| 坪単価(賃料+共益費) (税別) | 10,000円/坪 |
| 賃料(税別) |
654,800円 (10,000円/坪) |
| 共益費(税別) | 賃料に含む |
| 敷金 | 2ヶ月 |
| 礼金 | 無し |
| 償却 | 無し |
| 入居可能日 | 2026年3月 |
| 空室確認日 | 2026/02/10 |
その他空室情報
| 階数 | 坪数 |
賃料 (税別) |
共益費 (税別) |
敷金・保証金 | 入居日 | 詳細 |
お気に入り 追加 |
|---|---|---|---|---|---|---|---|
|
3階
B
|
67.2坪 |
672,000円 (10,000円/坪) |
賃料に含む | 2ヶ月 | 2026年5月 |
|
|









