明治安田生命宇都宮大通りビル
| 物件名 | 明治安田生命宇都宮大通りビル | ||
|---|---|---|---|
| 住所 | 栃木県宇都宮市大通り2-1-5 | ||
| 最寄駅 | |||
| 竣工年 | 1984年11月 | ||
| 規模 | 地上8階 地下1階 | ||
| 空調 | 個別空調 | OAフロア | OAフロア / Pタイル | 
| EV | 4 基 | トイレ | 男女別・室外 | 
| 駐車場 | 有り | 24時間使用 | 使用可 | 
| 耐震 | 新耐震基準 | 機械警備 | 有り | 
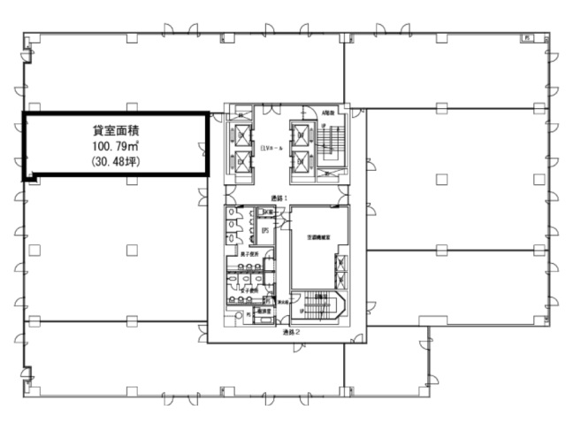
募集概要
| 階数 | 8階 | 
|---|---|
| 坪数 | 30.48坪 | 
| 用途 | 事務所 | 
| 月額(賃料+共益費) (税別) | 相談 | 
| 坪単価(賃料+共益費) (税別) | 相談 | 
| 賃料(税別) | 相談 | 
| 共益費(税別) | 賃料に含む | 
| 敷金 | 12ヶ月 | 
| 礼金 | 無し | 
| 償却 | 無し | 
| 入居可能日 | 即日 | 
| 空室確認日 | 2025/10/16 | 
その他空室情報
| 階数 | 坪数 | 賃料 (税別) | 共益費 (税別) | 敷金・保証金 | 入居日 | 詳細 | お気に入り 追加 | 
|---|---|---|---|---|---|---|---|
| 2階 申込有 | 33.48坪 | 相談 | 賃料に含む | 12ヶ月 | 即日 |   |   | 
| 7階 | 35.06坪 | 相談 | 賃料に含む | 12ヶ月 | 即日 |   |   | 




 
					
 
							 
							 
							 
							 
							 
							

 
						 
											
 
											 
											 
											 エリア検索
					エリア検索
				 
                



