こだわり条件で再検索

  • 東京メトロ丸ノ内線新宿御苑前駅
  • 東京メトロ副都心線新宿三丁目駅
  • JR山手線新宿駅
変更
坪数
(面積)
賃料+共益費
賃料
(坪当たり)
最寄駅
徒歩
築年数




快適


安全


新宿御苑フロント

物件No 0060897
住所 東京都新宿区新宿1-6-3
最寄駅
竣工年 1988年3月
規模 地上9階 地下1階
階数 坪数 賃料
(税別)
共益費
(税別)
敷金・保証金 入居日 詳細 お気に入り
追加
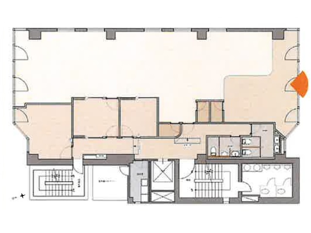
2階
セットアップ
67.99坪 2,039,700円
(30,000円/坪)
無し 相談 2026年3月 お問合せ お気に入り追加

担当者のコメント

新宿・新宿御苑エリアにある新宿御苑フロントは、1988年3月に建てられた地上9階地下1階の建物です。新耐震構造かつ機械警備もあり安心です。また、24時間の使用可能となっています。事務所をお探しの方にはぴったりの物件です。
最寄り駅は東京メトロ丸ノ内線新宿御苑前駅、東京メトロ副都心線新宿三丁目駅、JR山手線新宿駅と交通の便の良い立地です。最短の駅からは徒歩1分と駅から近いことも魅力です。OAフロア、個別空調、エレベータ1基を完備しています。

Copyright(C) Quick Consulting Co.,LTD. All right reserved.