こだわり条件で再検索

  • 都営都電荒川線向原駅
  • 東京メトロ丸ノ内線新大塚駅
  • JR山手線大塚駅
変更
坪数
(面積)
賃料+共益費
賃料
(坪当たり)
最寄駅
徒歩
築年数




快適


安全


東信東池袋ビル

物件No 0031570
住所 東京都豊島区東池袋5-44-15
最寄駅
竣工年 1989年11月
規模 地上7階 地下1階
階数 坪数 賃料
(税別)
共益費
(税別)
敷金・保証金 入居日 詳細 お気に入り
追加
5階 76.14坪 相談 228,420円
(3,000円/坪)
12ヶ月 2026年3月 お問合せ お気に入り追加

担当者のコメント

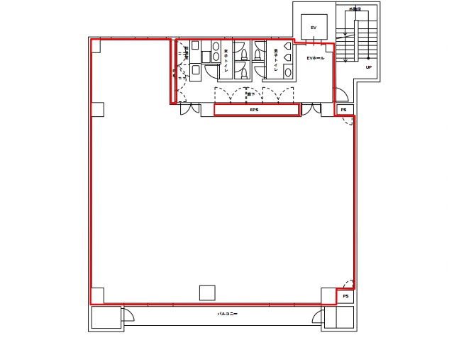
複数路線から徒歩圏内、柱のない綺麗な貸室形状が魅力的です。トイレ水回りも室外ですし、レイアウト効率が良さそうです。ビルのエントランス周りが広いため、高級感がございます。

Copyright(C) Quick Consulting Co.,LTD. All right reserved.