こだわり条件で再検索

  • 大阪メトロ堺筋線北浜駅
  • 京阪本線北浜駅
  • 京阪中之島線なにわ橋駅
  • 大阪メトロ御堂筋線淀屋橋駅
  • 京阪本線淀屋橋駅
変更
坪数
(面積)
賃料+共益費
賃料
(坪当たり)
最寄駅
徒歩
築年数




快適


安全


お電話でのお問い合わせ
06-6147-9791

北浜山富ビル

階数 坪数 賃料
(税別)
共益費
(税別)
敷金・保証金 入居日 詳細 お気に入り
追加
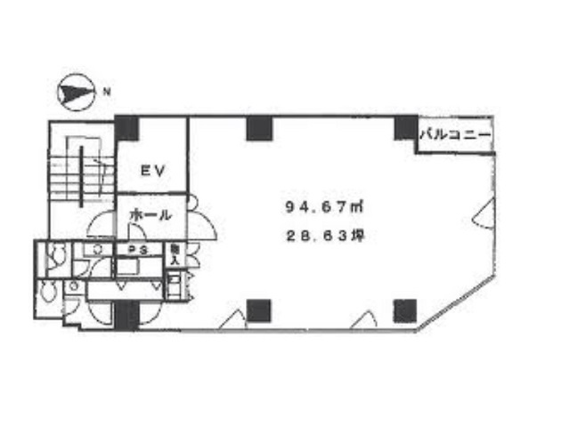
2階 28.63坪 相談 相談 相談 相談 お問合せ お気に入り追加

担当者のコメント

淀屋橋・北浜エリアにある北浜山富ビルは、1993年3月に建てられた地上7階の建物です。新耐震構造で安心です。また、24時間の使用可能となっています。事務所をお探しの方にはぴったりの物件です。
最寄り駅は大阪メトロ堺筋線北浜駅、京阪本線北浜駅、京阪中之島線なにわ橋駅、大阪メトロ御堂筋線淀屋橋駅、京阪本線淀屋橋駅と交通の便の良い立地です。最短の駅からは徒歩2分と駅から近いことも魅力です。個別空調、エレベータ1基を完備しています。

Copyright(C) Quick Consulting Co.,LTD. All right reserved.