こだわり条件で再検索

  • 東京
坪数
(面積)
賃料+共益費
賃料+共益費
(坪当たり)
最寄駅
徒歩
築年数




用途





快適


安全


東京駅周辺の賃貸オフィス・賃貸事務所 82 棟 ( 253 区画)

物件No 0047592
住所 東京都千代田区大手町2-6-4
最寄駅
竣工年 2021年6月
規模 地上38階 地下5階
階数 坪数 賃料+共益費
(坪単価)
敷金・保証金 用途 入居日 詳細 お気に入り
追加
13階
検討有
782.48坪 相談 相談
事務所
2026年12月 お問合せ お気に入り追加
14階
検討有
782.48坪 相談 相談
事務所
2026年12月 お問合せ お気に入り追加

担当者のコメント

丸の内・大手町・有楽町・霞ヶ関エリアにあるTOKYO TORCH 常盤橋タワーは、2021年6月に建てられた地上38階地下5階の建物です。新耐震構造かつ機械警備もあり安心です。また、24時間の使用可能となっています。事務所をお探しの方にはぴったりの物件です。
最寄り駅はJR山手線東京駅、東京メトロ東西線大手町駅、東京メトロ半蔵門線三越前駅、東京メトロ銀座線日本橋駅と交通の便の良い立地です。最短の駅からは徒歩7分と駅から近いことも魅力です。OAフロア、個別空調、エレベータ34基を完備しています。また駐車場も完備しています。

階数 坪数 賃料+共益費
(坪単価)
敷金・保証金 用途 入居日 詳細 お気に入り
追加
B1階
申込有
47.25坪 相談 5ヶ月
事務所
店舗
2026年6月 お問合せ お気に入り追加
6階 48.76坪 相談 6ヶ月
事務所
店舗
2026年6月 お問合せ お気に入り追加

担当者のコメント

●内装付きデザイナーズオフィス

階数 坪数 賃料+共益費
(坪単価)
敷金・保証金 用途 入居日 詳細 お気に入り
追加
3階 29.03坪 相談 10ヶ月
店舗
即日 お問合せ お気に入り追加
7階
申込有
29.03坪 相談 5ヶ月
事務所
即日 お問合せ お気に入り追加

担当者のコメント

八重洲・日本橋・京橋エリアにあるVORT京橋宝町は、2025年5月に建てられた地上8階の建物です。新耐震構造で安心です。また、24時間の使用可能となっています。店舗、事務所をお探しの方にはぴったりの物件です。
最寄り駅は東京メトロ銀座線京橋駅、都営浅草線宝町駅、東京メトロ有楽町線銀座一丁目駅、JR中央線(快速)東京駅と交通の便の良い立地です。最短の駅からは徒歩2分と駅から近いことも魅力です。OAフロア、個別空調、エレベータ1基を完備しています。

※レンタルオフィスの募集状況は流動的なため下記は仮表示です。最新の募集状況はお問合せ下さい。
※また、レンタルオフィスの面積は仮の数値です。実際の面積とは異なりますのでご注意ください
階数 坪数 賃料+共益費
(坪単価)
敷金・保証金 用途 入居日 詳細 お気に入り
追加
4階
21名用
53坪 相談 相談
レンタルオフィス
即日 お問合せ お気に入り追加
4階
26名用
65坪 相談 相談
レンタルオフィス
即日 お問合せ お気に入り追加

担当者のコメント

日本生命日本橋ビル内のハイブランドレンタルオフィス【WeWork】区画のご紹介です。
会議室やコワーキングスペースをシェアする特性上、表記の坪数は通常オフィスに換算した場合の目安となる坪数です。
内装工事・原状回復工事が不要のため、今すぐオフィスを稼働させたい企業様や、人数の増減が多い企業様にオススメです。人を集めやすい好立地に加え、創造性を刺激するデザイン、コミュニケーションを産み出す数々の仕掛けがあり、単純な事務所と言うよりも新たなプラットフォームとしての役割も期待出来ます。

物件No 0055259
住所 東京都中央区京橋1-13-1
最寄駅
竣工年 2011年1月
規模 地上10階 地下1階
階数 坪数 賃料+共益費
(坪単価)
敷金・保証金 用途 入居日 詳細 お気に入り
追加
8階
ハーフセット
223.7坪 相談 6ヶ月
事務所
2026年9月 お問合せ お気に入り追加

担当者のコメント

八重洲・日本橋・京橋エリアにあるWORK VILLA KYOBASHIは、2011年1月に建てられた地上10階地下1階の建物です。新耐震構造かつ機械警備もあり安心です。また、24時間の使用可能となっています。事務所をお探しの方にはぴったりの物件です。
最寄り駅は都営浅草線宝町駅、東京メトロ銀座線京橋駅、JR山手線東京駅、東京メトロ日比谷線八丁堀駅と交通の便の良い立地です。最短の駅からは徒歩2分と駅から近いことも魅力です。OAフロア、個別空調、エレベータ4基を完備しています。また機械式の駐車場も完備しています。

物件No 0062077
住所 東京都中央区京橋1-18-1
最寄駅
竣工年 2026年5月
規模 地上13階 地下2階
※当物件は特殊物件のため、最新の募集状況に関しましてはお問合せ頂けますようお願い致します。
階数 坪数 賃料+共益費
(坪単価)
敷金・保証金 用途 入居日 詳細 お気に入り
追加
2階
先行有
253.76坪 相談 10ヶ月
事務所
2026年5月 お問合せ お気に入り追加
3階
3F+4F先行有
526坪 相談 6ヶ月
事務所
2026年5月 お問合せ お気に入り追加
5階
先ハーフセットアップ
263.3坪 相談 6ヶ月
事務所
2026年5月 お問合せ お気に入り追加
7階
7F+8F
525.9坪 相談 10ヶ月
事務所
2026年5月 お問合せ お気に入り追加
9階
ハーフセットアップ
263.3坪 相談 10ヶ月
事務所
2026年5月 お問合せ お気に入り追加
11階 263.3坪 相談 10ヶ月
事務所
2026年5月 お問合せ お気に入り追加
12階
先行有
263.3坪 相談 10ヶ月
事務所
2026年5月 お問合せ お気に入り追加

担当者のコメント

八重洲通沿い角地の物件です。壁面緑化予定で視認性が良さそうです。コワーキングラウンジも設置予定で、ハイグレードな設備も備わります。東京駅からも徒歩圏内です。

※レンタルオフィスの募集状況は流動的なため下記は仮表示です。最新の募集状況はお問合せ下さい。
※また、レンタルオフィスの面積は仮の数値です。実際の面積とは異なりますのでご注意ください
階数 坪数 賃料+共益費
(坪単価)
敷金・保証金 用途 入居日 詳細 お気に入り
追加
21階
5名用#9
10坪 相談 相談
レンタルオフィス
相談 お問合せ お気に入り追加
21階
4名用#7
8坪 相談 相談
レンタルオフィス
相談 お問合せ お気に入り追加

担当者のコメント

東京駅の地下街から直結している商業エリア【OAZO】を構成するうちの一棟、新丸の内ビルディング内のエグゼクティブセンターです。高級感のある内装と、高いセキュリティが特徴のハイブランドレンタルオフィスです。他のレンタルオフィスと比較して、個室のセキュリティが高い点が特徴です。
会議室やコワーキングスペースをシェアする特性上、表示の坪数はあくまで目安となる坪数です。
例えばエグゼクティブセンターの30坪表示の物件は、通常の30坪オフィスを探されている企業様に合わせたお部屋となります。また、部屋番号に想定するご利用人数を記載しておりますので、そちらもご参考にされてください。

物件No 0023585
住所 東京都中央区京橋3-12-1
最寄駅
竣工年 1975年6月
規模 地上10階
階数 坪数 賃料+共益費
(坪単価)
敷金・保証金 用途 入居日 詳細 お気に入り
追加
2階 37.41坪 549,927円(税別)
(14,700円/坪)
6ヶ月
事務所
2026年5月 お問合せ お気に入り追加

担当者のコメント

エコー京橋ビルは、昭和通りの角地に立地し1階のコンビニが目印です。間取りが整形でレイアウトがしやすいです。宝町駅のA1出口が建物横にあります。

物件No 0027346
住所 東京都中央区日本橋3-2-2
最寄駅
竣工年 1992年3月
規模 地上7階 地下1階
階数 坪数 賃料+共益費
(坪単価)
敷金・保証金 用途 入居日 詳細 お気に入り
追加
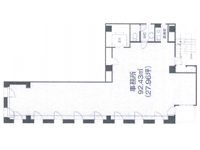
4階 27.96坪 782,880円(税別)
(28,000円/坪)
5ヶ月
事務所
2026年5月 お問合せ お気に入り追加

担当者のコメント

八重洲・日本橋・京橋エリアにあるオオタケ第7ビルは、1992年3月に建てられた地上7階地下1階の建物です。新耐震構造かつ機械警備もあり安心です。また、24時間の使用可能となっています。事務所をお探しの方にはぴったりの物件です。
最寄り駅はJR山手線東京駅、JR京浜東北線東京駅、JR東海道本線東京駅、JR中央線(快速)東京駅と交通の便の良い立地です。最短の駅からは徒歩3分と駅から近いことも魅力です。個別空調、エレベータ1基を完備しています。

階数 坪数 賃料+共益費
(坪単価)
敷金・保証金 用途 入居日 詳細 お気に入り
追加
4階 40.18坪 883,960円(税別)
(22,000円/坪)
10ヶ月
事務所
店舗
即日 お問合せ お気に入り追加

担当者のコメント

中央通り沿いの物件です。JR・地下鉄各駅から徒歩圏内で便利な立地です。間取りが整形でレイアウトがしやすいです。

Copyright(C) Quick Consulting Co.,LTD. All right reserved.