(仮称)川越ロジI
| 物件名 | (仮称)川越ロジI | ||
|---|---|---|---|
| 住所 | 埼玉県川越市芳野台1-103-6 | ||
| 最寄駅 | |||
| 竣工年 | 1982年1月 | ||
| 規模 | 地上5階 | ||
| 空調 | OAフロア | ||
| EV | トイレ | 調査中 | |
| 駐車場 | 有り | 24時間使用 | 調査中 |
| 耐震 | 新耐震基準 | 機械警備 | 調査中 |
募集概要
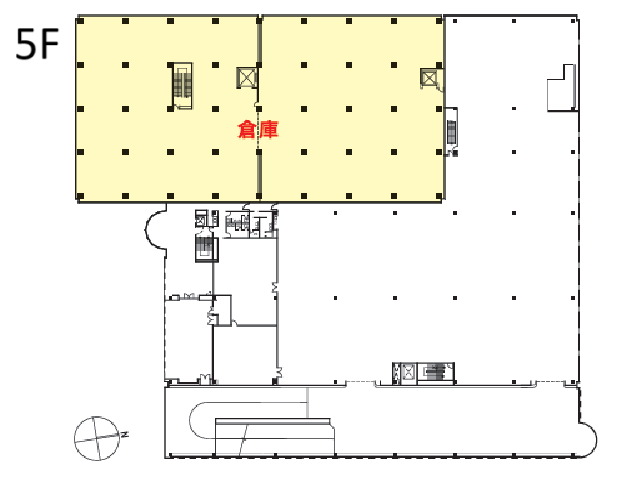
| 階数 | 5階 |
|---|---|
| 坪数 | 668.9坪 |
| 用途 | 倉庫・工場 |
| 月額(賃料+共益費) (税別) | 相談 |
| 坪単価(賃料+共益費) (税別) | 相談 |
| 賃料(税別) |
2,274,260円 (3,400円/坪) |
| 共益費(税別) | 相談 |
| 敷金 | 6ヶ月 |
| 礼金 | 相談 |
| 償却 | |
| 入居可能日 | 2025年8月 |
| 空室確認日 | 2025/07/25 |
その他空室情報
| 階数 | 坪数 |
賃料 (税別) |
共益費 (税別) |
敷金・保証金 | 入居日 | 詳細 |
お気に入り 追加 |
|---|---|---|---|---|---|---|---|
| 1階 | 634.52坪 |
2,157,368円 (3,400円/坪) |
相談 | 6ヶ月 | 2025年8月 |
|
|
|
1階
1F+2F+5F
|
1325.17坪 |
4,505,578円 (3,400円/坪) |
相談 | 6ヶ月 | 2025年8月 |
|
|
| 2階 | 21.74坪 | 相談 | 相談 | 相談 | 相談 |
|
|









