京都銀行会館
| 物件名 | 京都銀行会館 | ||
|---|---|---|---|
| 住所 | 京都府京都市中京区木屋町通二条下る | ||
| 最寄駅 | |||
| 竣工年 | 1977年9月 | ||
| 規模 | 地上8階 地下1階 | ||
| 空調 | 個別空調 | OAフロア | |
| EV | 4 基 | トイレ | 男女別・室外 |
| 駐車場 | 有り | 24時間使用 | 使用可 |
| 耐震 | 新耐震基準相当 | 機械警備 | 有り |
募集概要
| 階数 |
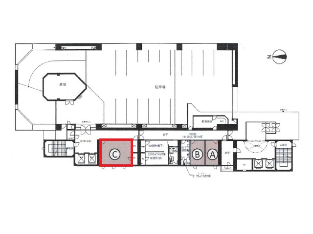
1階
103
|
|---|---|
| 坪数 | 9.68坪 |
| 用途 | 事務所 |
| 月額(賃料+共益費) (税別) | 195,004円 |
| 坪単価(賃料+共益費) (税別) | 20,145円/坪 |
| 賃料(税別) |
195,004円 (20,145円/坪) |
| 共益費(税別) | 賃料に含む |
| 敷金 | 6ヶ月 |
| 礼金 | 無し |
| 償却 | 無し |
| 入居可能日 | 即日 |
| 空室確認日 | 2026/01/07 |
その他空室情報
| 階数 | 坪数 |
賃料 (税別) |
共益費 (税別) |
敷金・保証金 | 入居日 | 詳細 |
お気に入り 追加 |
|---|---|---|---|---|---|---|---|
|
1階
101
|
4.42坪 |
90,001円 (20,362円/坪) |
賃料に含む | 6ヶ月 | 相談 |
|
|
|
1階
102
|
4.42坪 |
90,001円 (20,362円/坪) |
賃料に含む | 6ヶ月 | 相談 |
|
|
|
2階
201
|
98.54坪 |
1,478,100円 (15,000円/坪) |
賃料に含む | 6ヶ月 | 相談 |
|
|
|
2階
202
|
67.54坪 |
1,013,100円 (15,000円/坪) |
賃料に含む | 6ヶ月 | 相談 |
|
|
|
2階
203
|
12.1坪 |
230,009円 (19,009円/坪) |
賃料に含む | 6ヶ月 | 即日 |
|
|
|
3階
301
|
69.84坪 |
1,047,600円 (15,000円/坪) |
賃料に含む | 6ヶ月 | 相談 |
|
|
|
3階
302
|
35.55坪 |
533,250円 (15,000円/坪) |
賃料に含む | 6ヶ月 | 相談 |
|
|
| 4階 | 242.61坪 |
3,639,150円 (15,000円/坪) |
賃料に含む | 6ヶ月 | 即日 |
|
|
| 5階 | 257.68坪 |
4,122,880円 (16,000円/坪) |
賃料に含む | 6ヶ月 | 即日 |
|
|









