SYNASIA本町ビル
| 物件名 | SYNASIA本町ビル | ||
|---|---|---|---|
| 住所 | 大阪府大阪市中央区本町3-9-9 | ||
| 最寄駅 | |||
| 竣工年 | 2026年2月 | ||
| 規模 | 地上14階 地下1階 | ||
| 空調 | 個別空調 | OAフロア | OAフロア |
| EV | 4 基 | トイレ | 男女別・室外 |
| 駐車場 | 24時間使用 | 使用可 | |
| 耐震 | 新耐震基準 | 機械警備 | 有り |
募集概要
| 階数 |
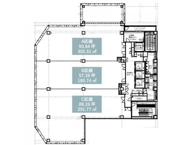
3階
分割プランC
|
|---|---|
| 坪数 | 88.26坪 |
| 用途 | 事務所 |
| 月額(賃料+共益費) (税別) | 相談 |
| 坪単価(賃料+共益費) (税別) | 相談 |
| 賃料(税別) | 相談 |
| 共益費(税別) | 相談 |
| 敷金 | 相談 |
| 礼金 | 無し |
| 償却 | 無し |
| 入居可能日 | 2026年9月 |
| 空室確認日 | 2025/10/07 |
その他空室情報
| 階数 | 坪数 |
賃料 (税別) |
共益費 (税別) |
敷金・保証金 | 入居日 | 詳細 |
お気に入り 追加 |
|---|---|---|---|---|---|---|---|
|
2階
申込有
|
236.5坪 | 相談 | 相談 | 相談 | 2026年9月 |
|
|
| 3階 | 236.5坪 | 相談 | 相談 | 相談 | 2026年9月 |
|
|
|
3階
分割プランA
|
90.84坪 | 相談 | 相談 | 相談 | 2026年9月 |
|
|
|
3階
分割プランB
|
57.39坪 | 相談 | 相談 | 相談 | 2026年9月 |
|
|
| 5階 | 236.5坪 | 相談 | 相談 | 相談 | 2026年9月 |
|
|
| 6階 | 236.5坪 | 相談 | 相談 | 相談 | 2026年9月 |
|
|
| 7階 | 236.5坪 | 相談 | 相談 | 相談 | 2026年9月 |
|
|
| 8階 | 215.16坪 | 相談 | 相談 | 相談 | 2026年9月 |
|
|
|
8階
分割プランA
|
69.49坪 | 相談 | 相談 | 相談 | 2026年9月 |
|
|
|
8階
分割プランB
|
57.39坪 | 相談 | 相談 | 相談 | 2026年9月 |
|
|
|
8階
分割プランC
|
88.26坪 | 相談 | 相談 | 相談 | 2026年9月 |
|
|
|
8階
分割プランAB
|
147.88坪 | 相談 | 相談 | 相談 | 2026年9月 |
|
|
|
9階
申込有
|
215.16坪 | 相談 | 相談 | 相談 | 2026年4月 |
|
|
|
10階
申込有
|
215.16坪 | 相談 | 相談 | 相談 | 2026年4月 |
|
|
|
11階
先行有
|
215.16坪 | 相談 | 相談 | 相談 | 2026年4月 |
|
|









