岩﨑ビル
| 物件名 | 岩﨑ビル | ||
|---|---|---|---|
| 住所 | 埼玉県さいたま市浦和区北浦和4-1-11 | ||
| 最寄駅 | |||
| 竣工年 | 1989年3月 | ||
| 規模 | 地上7階 | ||
| 空調 | 個別空調 | OAフロア | タイルカーペット |
| EV | 1 基 | トイレ | 男女別・室内 |
| 駐車場 | 有り | 24時間使用 | 使用可 |
| 耐震 | 新耐震基準 | 機械警備 | 有り |
募集概要
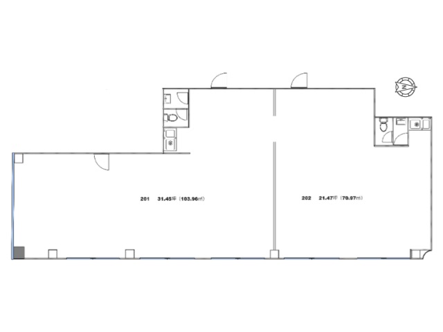
| 階数 |
2階
201+202
|
|---|---|
| 坪数 | 52.92坪 |
| 用途 | 事務所 , 店舗 |
| 月額(賃料+共益費) (税別) | 720,000円 |
| 坪単価(賃料+共益費) (税別) | 13,605円/坪 |
| 賃料(税別) |
654,545円 (12,369円/坪) |
| 共益費(税別) |
65,455円 (1,237円/坪) |
| 敷金 | 3ヶ月 |
| 礼金 | 1ヶ月 |
| 償却 | 無し |
| 入居可能日 | 即日 |
| 空室確認日 | 2025/12/19 |
その他空室情報
| 階数 | 坪数 |
賃料 (税別) |
共益費 (税別) |
敷金・保証金 | 入居日 | 詳細 |
お気に入り 追加 |
|---|---|---|---|---|---|---|---|
|
2階
201
|
31.45坪 |
400,000円 (12,719円/坪) |
40,000円 (1,272円/坪) |
3ヶ月 | 即日 |
|
|
|
2階
202
|
21.47坪 |
270,000円 (12,576円/坪) |
27,000円 (1,258円/坪) |
3ヶ月 | 即日 |
|
|









