第一小池ビル
| 物件名 | 第一小池ビル | ||
|---|---|---|---|
| 住所 | 千葉県八千代市八千代台南1-1-2 | ||
| 最寄駅 | |||
| 竣工年 | 1974年10月 | ||
| 規模 | 地上6階 地下1階 | ||
| 空調 | OAフロア | ||
| EV | 1 基 | トイレ | 男女別・室外 |
| 駐車場 | 無し | 24時間使用 | 使用可 |
| 耐震 | 旧耐震基準 | 機械警備 | 調査中 |
募集概要
| 階数 |
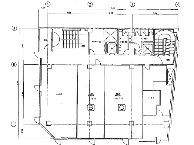
2階
C
|
|---|---|
| 坪数 | 23.3坪 |
| 用途 | 事務所 , 店舗 |
| 月額(賃料+共益費) (税別) | 279,600円 |
| 坪単価(賃料+共益費) (税別) | 12,000円/坪 |
| 賃料(税別) |
233,000円 (10,000円/坪) |
| 共益費(税別) |
46,600円 (2,000円/坪) |
| 敷金 | 10ヶ月 |
| 礼金 | 1ヶ月 |
| 償却 | 20% |
| 入居可能日 | 即日 |
| 空室確認日 | 2026/03/16 |
その他空室情報
| 階数 | 坪数 |
賃料 (税別) |
共益費 (税別) |
敷金・保証金 | 入居日 | 詳細 |
お気に入り 追加 |
|---|---|---|---|---|---|---|---|
|
2階
B
|
16坪 |
160,000円 (10,000円/坪) |
32,000円 (2,000円/坪) |
10ヶ月 | 即日 |
|
|
|
3階
A
|
29坪 |
290,000円 (10,000円/坪) |
58,000円 (2,000円/坪) |
10ヶ月 | 即日 |
|
|
|
3階
B
|
25.4坪 |
254,000円 (10,000円/坪) |
50,800円 (2,000円/坪) |
10ヶ月 | 即日 |
|
|
|
5階
C
|
21.8坪 |
218,000円 (10,000円/坪) |
43,600円 (2,000円/坪) |
10ヶ月 | 即日 |
|
|









