エムヨン
| 物件名 | エムヨン | ||
|---|---|---|---|
| 住所 | 千葉県流山市南流山2-4-2 | ||
| 最寄駅 | |||
| 竣工年 | 2010年9月 | ||
| 規模 | 地上3階 | ||
| 空調 | 無し | OAフロア | スケルトン |
| EV | トイレ | ||
| 駐車場 | 24時間使用 | 使用可 | |
| 耐震 | 新耐震基準 | 機械警備 | 有り |
募集概要
| 階数 |
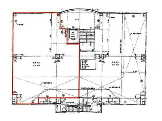
3階
1号室 スケルトン
|
|---|---|
| 坪数 | 53.05坪 |
| 用途 | 事務所 , 店舗 |
| 月額(賃料+共益費) (税別) | 742,700円 |
| 坪単価(賃料+共益費) (税別) | 14,000円/坪 |
| 賃料(税別) |
742,700円 (14,000円/坪) |
| 共益費(税別) | 賃料に含む |
| 敷金 | 10ヶ月 |
| 礼金 | 無し |
| 償却 | 20% |
| 入居可能日 | 2026年5月 |
| 空室確認日 | 2026/03/04 |









