グラングリーン大阪パークタワー
| 物件名 | グラングリーン大阪パークタワー | ||
|---|---|---|---|
| 住所 | 大阪府大阪市北区大深町5-54 | ||
| 最寄駅 | |||
| 竣工年 | 2024年12月 | ||
| 規模 | 地上39階 地下3階 | ||
| 空調 | 個別空調 | OAフロア | OAフロア |
| EV | 22 基 | トイレ | 男女別・室外 |
| 駐車場 | 24時間使用 | ||
| 耐震 | 新耐震基準 | 機械警備 | 有り |
募集概要
| 階数 |
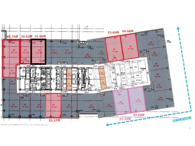
8階
872
|
|---|---|
| 坪数 | 52.86坪 |
| 用途 | 事務所 |
| 月額(賃料+共益費) (税別) | 相談 |
| 坪単価(賃料+共益費) (税別) | 相談 |
| 賃料(税別) | 相談 |
| 共益費(税別) | 相談 |
| 敷金 | 相談 |
| 礼金 | 無し |
| 償却 | 無し |
| 入居可能日 | 相談 |
| 空室確認日 | 2025/10/03 |
その他空室情報
| 階数 | 坪数 |
賃料 (税別) |
共益費 (税別) |
敷金・保証金 | 入居日 | 詳細 |
お気に入り 追加 |
|---|---|---|---|---|---|---|---|
|
6階
656~659
|
222.91坪 | 相談 | 相談 | 相談 | 相談 |
|
|
|
6階
651~655
|
258.18坪 | 相談 | 相談 | 相談 | 相談 |
|
|
|
6階
651~659
|
481.09坪 | 相談 | 相談 | 相談 | 相談 |
|
|
|
7階
753
|
52.86坪 | 相談 | 相談 | 相談 | 相談 |
|
|
|
7階
762~773
|
562.61坪 | 相談 | 相談 | 相談 | 相談 |
|
|
|
7階
763・762
|
59.54坪 | 相談 | 相談 | 相談 | 相談 |
|
|
|
7階
765
|
106.68坪 | 相談 | 相談 | 相談 | 相談 |
|
|
|
7階
766
|
54.68坪 | 相談 | 相談 | 相談 | 相談 |
|
|
|
7階
767
|
53.65坪 | 相談 | 相談 | 相談 | 相談 |
|
|
|
7階
769
|
57.7坪 | 相談 | 相談 | 相談 | 相談 |
|
|
|
7階
770
|
54.99坪 | 相談 | 相談 | 相談 | 相談 |
|
|
|
7階
754
|
53.37坪 | 相談 | 相談 | 相談 | 相談 |
|
|
|
7階
772
|
52.86坪 | 相談 | 相談 | 相談 | 相談 |
|
|
|
7階
754
|
53.37坪 | 相談 | 相談 | 相談 | 相談 |
|
|
|
7階
773
|
34.82坪 | 相談 | 相談 | 相談 | 相談 |
|
|
|
8階
858(公園側)申込
|
53.65坪 | 相談 | 相談 | 相談 | 相談 |
|
|
|
8階
854 商談中
|
53.37坪 | 相談 | 相談 | 相談 | 相談 |
|
|
|
8階
54.68
|
54.68坪 | 相談 | 相談 | 相談 | 相談 |
|
|
|
8階
857
|
53.65坪 | 相談 | 相談 | 相談 | 相談 |
|
|
|
8階
874・875
|
85.74坪 | 相談 | 相談 | 相談 | 相談 |
|
|
|
8階
873
|
34.82坪 | 相談 | 相談 | 相談 | 相談 |
|
|
|
11階
ワンフロア
|
1260.25坪 | 相談 | 相談 | 相談 | 相談 |
|
|









