三善ビル
| 物件名 | 三善ビル | ||
|---|---|---|---|
| 住所 | 京都府京都市下京区烏丸通五条下る大坂町400 | ||
| 最寄駅 | |||
| 竣工年 | 1980年3月 | ||
| 規模 | 地上8階 地下1階 | ||
| 空調 | OAフロア | ||
| EV | 1 基 | トイレ | 男女別・室外 |
| 駐車場 | 24時間使用 | ||
| 耐震 | 旧耐震基準 | 機械警備 | |
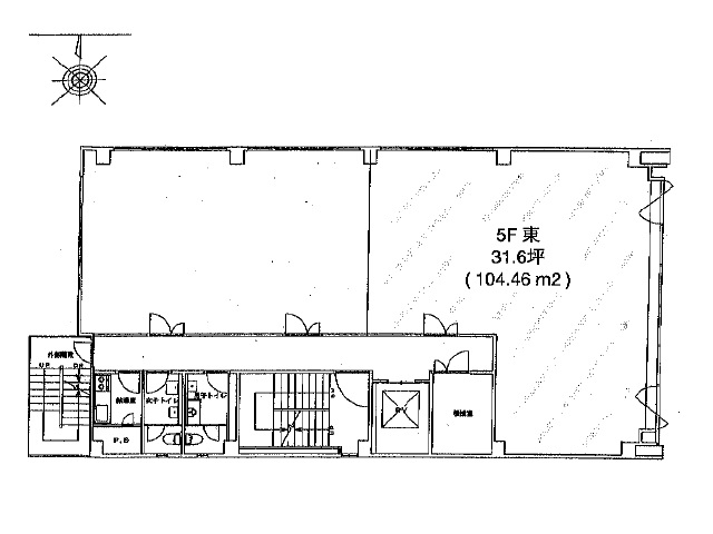
募集概要
| 階数 |
5階
東
|
|---|---|
| 坪数 | 31.6坪 |
| 用途 | 事務所 |
| 月額(賃料+共益費) (税別) | 474,000円 |
| 坪単価(賃料+共益費) (税別) | 15,000円/坪 |
| 賃料(税別) |
379,200円 (12,000円/坪) |
| 共益費(税別) |
94,800円 (3,000円/坪) |
| 敷金 | 12ヶ月 |
| 礼金 | 無し |
| 償却 | スライド |
| 入居可能日 | 相談 |
| 空室確認日 | 2026/02/13 |
その他空室情報
| 階数 | 坪数 |
賃料 (税別) |
共益費 (税別) |
敷金・保証金 | 入居日 | 詳細 |
お気に入り 追加 |
|---|---|---|---|---|---|---|---|
|
2階
中央
|
15.03坪 |
180,360円 (12,000円/坪) |
45,090円 (3,000円/坪) |
12ヶ月 | 相談 |
|
|









