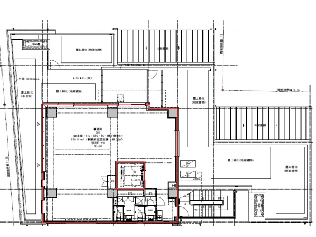
ユースクエア渋谷神山町(旧:GRAN DUO神山町) 3階 33.45坪
現在、こちらのお部屋は募集しておりません。
空室情報は常に更新されています。最新の空室状況はお電話にてお問い合わせください。
こちらのビルには他に空室がございます
このビルの空室を見るユースクエア渋谷神山町(旧:GRAN DUO神山町)
| 物件名 | ユースクエア渋谷神山町(旧:GRAN DUO神山町) | ||
|---|---|---|---|
| 住所 | 東京都渋谷区神山町7-12 | ||
| 最寄駅 | |||
| 竣工年 | 2020年8月 | ||
| 規模 | 地上6階 地下1階 | ||
| 空調 | 個別空調 | OAフロア | OAフロア |
| EV | 1 基 | トイレ | 男女別・室内 |
| 駐車場 | 無し | 24時間使用 | 使用可 |
| 耐震 | 新耐震基準 | 機械警備 | 有り |
募集概要
| 階数 |
3階
ハーフセット 申
|
|---|---|
| 坪数 | 33.45坪 |
| 用途 | 事務所 |
この物件の最新の空室状況はお問合せ下さい
その他空室情報
| 階数 | 坪数 |
賃料 (税別) |
共益費 (税別) |
敷金・保証金 | 入居日 | 詳細 |
お気に入り 追加 |
|---|---|---|---|---|---|---|---|
|
6階
フルセットアップ
|
33.45坪 | 相談 | 賃料に含む | 4ヶ月 | 2026年10月 |
|
|









