第16スカイビル
| 物件名 | 第16スカイビル | ||
|---|---|---|---|
| 住所 | 東京都渋谷区千駄ヶ谷3-14-5 | ||
| 最寄駅 | |||
| 竣工年 | 2017年12月 | ||
| 規模 | 地上9階 | ||
| 空調 | 個別空調 | OAフロア | スケルトン / その他 |
| EV | 1 基 | トイレ | 男女別・室内 |
| 駐車場 | 有り | 24時間使用 | 使用可 |
| 耐震 | 新耐震基準 | 機械警備 | 有り |
募集概要
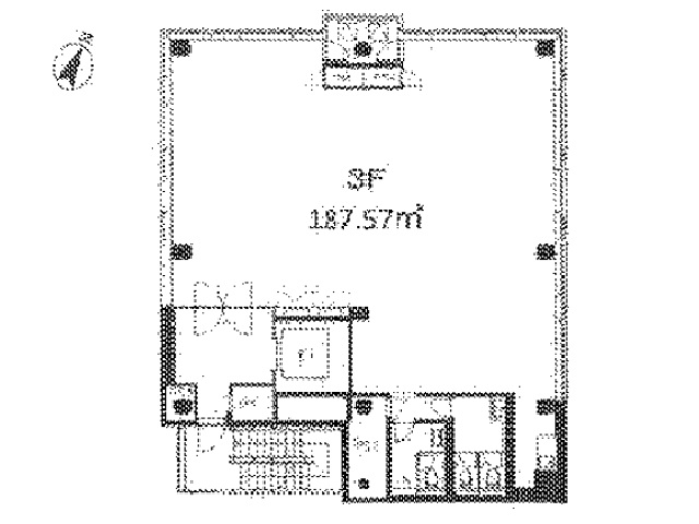
| 階数 |
3階
301
|
|---|---|
| 坪数 | 56.74坪 |
| 用途 | 事務所 |
| 月額(賃料+共益費) (税別) | 1,673,830円 |
| 坪単価(賃料+共益費) (税別) | 29,500円/坪 |
| 賃料(税別) |
1,673,830円 (29,500円/坪) |
| 共益費(税別) | 賃料に含む |
| 敷金 | 6ヶ月 |
| 礼金 | 無し |
| 償却 | 1ヶ月 |
| 入居可能日 | 2026年9月 |
| 空室確認日 | 2026/03/03 |
その他空室情報
| 階数 | 坪数 |
賃料 (税別) |
共益費 (税別) |
敷金・保証金 | 入居日 | 詳細 |
お気に入り 追加 |
|---|---|---|---|---|---|---|---|
|
6階
601
|
48.82坪 |
1,440,190円 (29,500円/坪) |
賃料に含む | 6ヶ月 | 2026年9月 |
|
|









