なんばスカイオ
| 物件名 | なんばスカイオ | ||
|---|---|---|---|
| 住所 | 大阪府大阪市中央区難波5-1-60 | ||
| 最寄駅 | |||
| 竣工年 | 2018年9月 | ||
| 規模 | 地上31階 地下2階 | ||
| 空調 | 個別空調 | OAフロア | OAフロア |
| EV | 20 基 | トイレ | 男女別・室外 |
| 駐車場 | 有り | 24時間使用 | 使用可 |
| 耐震 | 新耐震基準 | 機械警備 | 有り |
募集概要
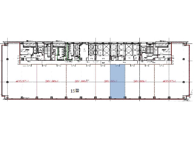
| 階数 | 15階 |
|---|---|
| 坪数 | 39.6坪 |
| 用途 | 事務所 |
| 月額(賃料+共益費) (税別) | 相談 |
| 坪単価(賃料+共益費) (税別) | 相談 |
| 賃料(税別) | 相談 |
| 共益費(税別) | 相談 |
| 敷金 | 12ヶ月 |
| 礼金 | 無し |
| 償却 | 未定 |
| 入居可能日 | 2026年5月 |
| 空室確認日 | 2025/12/04 |









