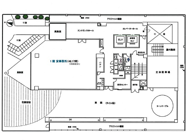
天神偕成ビル 1階 46.17坪
現在、こちらのお部屋は募集しておりません。
空室情報は常に更新されています。最新の空室状況はお電話にてお問い合わせください。
こちらのビルには他に空室がございます
このビルの空室を見る天神偕成ビル
| 物件名 | 天神偕成ビル | ||
|---|---|---|---|
| 住所 | 福岡県福岡市中央区大名2-8-22 | ||
| 最寄駅 | |||
| 竣工年 | 1992年1月 | ||
| 規模 | 地上10階 地下1階 | ||
| 空調 | 個別空調 | OAフロア | OAフロア |
| EV | 2 基 | トイレ | 男女別・室外 |
| 駐車場 | 有り | 24時間使用 | 使用可 |
| 耐震 | 新耐震基準 | 機械警備 | 有り |
募集概要
| 階数 |
1階
★
|
|---|---|
| 坪数 | 46.17坪 |
| 用途 | 事務所 , 店舗 |
この物件の最新の空室状況はお問合せ下さい
その他空室情報
| 階数 | 坪数 |
賃料 (税別) |
共益費 (税別) |
敷金・保証金 | 入居日 | 詳細 |
お気に入り 追加 |
|---|---|---|---|---|---|---|---|
|
6階
6+7階
|
230.6坪 |
2,882,500円 (12,500円/坪) |
807,100円 (3,500円/坪) |
12ヶ月 | 即日 |
|
|
|
6階
一部申込有
|
115.3坪 |
1,441,250円 (12,500円/坪) |
403,550円 (3,500円/坪) |
12ヶ月 | 即日 |
|
|
| 6階 | 60坪 |
840,000円 (14,000円/坪) |
210,000円 (3,500円/坪) |
12ヶ月 | 2026年5月 |
|
|
| 7階 | 115.3坪 |
1,441,250円 (12,500円/坪) |
403,550円 (3,500円/坪) |
12ヶ月 | 即日 |
|
|










