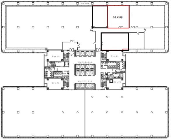
大阪センタービル 13階 36.43坪
現在、こちらのお部屋は募集しておりません。
空室情報は常に更新されています。最新の空室状況はお電話にてお問い合わせください。
こちらのビルには他に空室がございます
このビルの空室を見る大阪センタービル
| 物件名 | 大阪センタービル | ||
|---|---|---|---|
| 住所 | 大阪府大阪市中央区久太郎町4-1-3 | ||
| 最寄駅 | |||
| 竣工年 | 1969年12月 | ||
| 規模 | 地上13階 地下4階 | ||
| 空調 | セントラル空調 | OAフロア | OAフロア |
| EV | 17 基 | トイレ | 男女別・室外 |
| 駐車場 | 有り | 24時間使用 | 使用可 |
| 耐震 | 新耐震基準 | 機械警備 | 有り |
募集概要
| 階数 | 13階 |
|---|---|
| 坪数 | 36.43坪 |
| 用途 | 事務所 |
この物件の最新の空室状況はお問合せ下さい
その他空室情報
| 階数 | 坪数 |
賃料 (税別) |
共益費 (税別) |
敷金・保証金 | 入居日 | 詳細 |
お気に入り 追加 |
|---|---|---|---|---|---|---|---|
|
B1階
27
|
13.37坪 | 相談 |
54,283円 (4,060円/坪) |
相談 | 即日 |
|
|
|
B1階
31
|
5.44坪 | 相談 |
22,087円 (4,060円/坪) |
相談 | 即日 |
|
|
|
B1階
14
|
13.78坪 | 相談 |
55,947円 (4,060円/坪) |
相談 | 即日 |
|
|
|
B1階
30
|
6.03坪 | 相談 |
24,482円 (4,060円/坪) |
相談 | 即日 |
|
|
|
B1階
26
|
9.66坪 | 相談 |
39,220円 (4,060円/坪) |
相談 | 即日 |
|
|
| B1階 | 15.61坪 | 相談 |
63,377円 (4,060円/坪) |
相談 | 相談 |
|
|
| B1階 | 2.63坪 | 相談 |
10,678円 (4,060円/坪) |
相談 | 即日 |
|
|
| 1階 | 82.7坪 | 相談 | 賃料に含む | 相談 | 2027年4月 |
|
|
| 2階 | 91.48坪 | 相談 | 相談 | 相談 | 2026年11月 |
|
|
| 10階 | 32.9坪 | 相談 |
133,574円 (4,060円/坪) |
相談 | 即日 |
|
|









