第3東ビル
| 物件名 | 第3東ビル | ||
|---|---|---|---|
| 住所 | 東京都千代田区神田平河町1 | ||
| 最寄駅 | |||
| 竣工年 | 1969年11月 | ||
| 規模 | 地上11階 地下1階 | ||
| 空調 | 個別空調 | OAフロア | OAフロア |
| EV | 2 基 | トイレ | 男女別・室外 |
| 駐車場 | 有り | 24時間使用 | 使用可 |
| 耐震 | 旧耐震基準 | 機械警備 | 有り |
募集概要
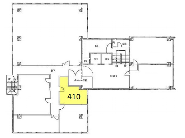
| 階数 |
4階
410
|
|---|---|
| 坪数 | 6.5坪 |
| 用途 | 事務所 |
| 月額(賃料+共益費) (税別) | 104,000円 |
| 坪単価(賃料+共益費) (税別) | 16,000円/坪 |
| 賃料(税別) |
84,500円 (13,000円/坪) |
| 共益費(税別) |
19,500円 (3,000円/坪) |
| 敷金 | 8ヶ月 |
| 礼金 | 無し |
| 償却 | 無し |
| 入居可能日 | 2026年4月 |
| 空室確認日 | 2026/01/08 |









