新横浜磯栄ビル
| 物件名 | 新横浜磯栄ビル | ||
|---|---|---|---|
| 住所 | 神奈川県横浜市港北区新横浜3-16-15 | ||
| 最寄駅 | |||
| 竣工年 | 1989年6月 | ||
| 規模 | 地上10階 地下1階 | ||
| 空調 | 個別空調 | OAフロア | OAフロア |
| EV | 1 基 | トイレ | 男女別・室外 |
| 駐車場 | 無し | 24時間使用 | 使用可 |
| 耐震 | 新耐震基準 | 機械警備 | 有り |
募集概要
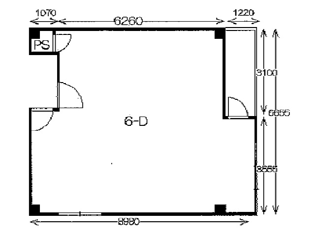
| 階数 |
6階
D
|
|---|---|
| 坪数 | 15.12坪 |
| 用途 | 事務所 |
| 月額(賃料+共益費) (税別) | 200,000円 |
| 坪単価(賃料+共益費) (税別) | 13,228円/坪 |
| 賃料(税別) |
140,000円 (9,259円/坪) |
| 共益費(税別) |
60,000円 (3,968円/坪) |
| 敷金 | 3ヶ月 |
| 礼金 | 1ヶ月 |
| 償却 | 無し |
| 入居可能日 | 2026年3月 |
| 空室確認日 | 2026/01/21 |
その他空室情報
| 階数 | 坪数 |
賃料 (税別) |
共益費 (税別) |
敷金・保証金 | 入居日 | 詳細 |
お気に入り 追加 |
|---|---|---|---|---|---|---|---|
| 5階 | 47.4坪 |
430,000円 (9,072円/坪) |
100,000円 (2,110円/坪) |
5ヶ月 | 即日 |
|
|









